VILLAGE BAT 3 - Appt 3 pièces - 6 personnes
Présentation
Résidence proche centre station, proche des commerces.
La résidence est exposée sud, face au Mont Bisanne
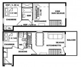
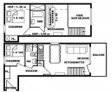
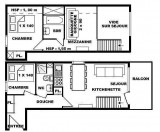
Appartement 3 pièces mezzanine, situé au 3ème étage (1 seul étage à monter), de la résidence sans ascenseur, orienté SUD avec balcon.
L'appartement se compose d'une kitchenette équipée, d'un séjour , d'une chambre avec 1 lit 2 personnes, d'une salle d'eau avec wc non séparé, à l'étage une mezzanine avec une banquette gigogne 2x80, une salle de bains et d'une chambre avec lit 2 personnes.
Location classée meublé de tourisme 2*.
Catégorie ménage: G
La résidence est exposée sud, face au Mont Bisanne
Appartement 3 pièces mezzanine, situé au 3ème étage (1 seul étage à monter), de la résidence sans ascenseur, orienté SUD avec balcon.
L'appartement se compose d'une kitchenette équipée, d'un séjour , d'une chambre avec 1 lit 2 personnes, d'une salle d'eau avec wc non séparé, à l'étage une mezzanine avec une banquette gigogne 2x80, une salle de bains et d'une chambre avec lit 2 personnes.
Location classée meublé de tourisme 2*.
Catégorie ménage: G
Appartement 2 chambres et mezzanine doté d'un balcon exposé sud situé dans la résidence Village 3 en centre station à proximité des pistes de ski et rassemblement ESF et des commerces.
BONS PLANS AVEC LES SAISIES RÉSERVATIONAJOUTEZ AU PANIER VOTRE HÉBERGEMENT ET PROFITEZ DE REMISES DE -10 à 30% ! |
|
| ❄️HIVER : | Forfaits de ski, location de matériel, cours de ski, centre aquatique/spa, sorties en raquettes |
| ☀️ÉTÉ : | Pass loisirs, forfaits VTT, forfaits piéton, randonnées guidées |
En bref
- TYPE DE LOGEMENT :
- trois pièces
- Localisation :
- Les Saisies centre station
- ANIMAUX :
- animaux interdits
- Capacité maximale :
- 6 personnes
- ÉTAGE PAR RAPPORT AU SOL :
- 2ème étage
- EXPOSITION :
- sud
Équipements
- CHAMBRE 1 :
- 1 lit(s) double(s) 140 cm
- CHAMBRE 2 :
- 1 lit(s) double(s) 140 cm
- MEZZANINE :
- 1 banquette(s) gigogne(s) 2 pers
- STATIONNEMENT :
- parking couvert en supplément
- SALLE(S) DE BAINS :
- 1 salle(s) de bains avec baignoire
- 1 salle(s) de bains avec douche
- SANITAIRES :
- 1 WC dans salle de bains
- ÉQUIPEMENTS :
- casier à skis
- EXTÉRIEUR :
- balcon






















