MONT BLANC BAT A - Appt Studio / mezz - 6 personnes
Présentation
Résidence située proche du centre station, à proximité de toutes commodités.
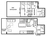
Appartement studio alcôve mezzanine situé au 1er étage de la résidence sans ascenseur (un étage et demi à monter), orienté ouest avec balcon.
L'appartement se compose d'un séjour avec une kitchenette équipée ouverte, d'une alcôve avec lits superposés 2x90 (NB: le lit supérieur d'un lit superposé est interdit aux - de 6 ans), d'une mezzanine avec deux espaces communicants fermés pas un rideau, le premier avec un lit 140 (cabinet de toilette attenant) et le second avec deux lits 90, d'une salle d'eau et wc séparé.
Cet appartement est classé meublé de tourisme 1 étoile.
Catégorie ménage: F
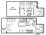
Appartement studio alcôve mezzanine situé au 1er étage de la résidence sans ascenseur (un étage et demi à monter), orienté ouest avec balcon.
L'appartement se compose d'un séjour avec une kitchenette équipée ouverte, d'une alcôve avec lits superposés 2x90 (NB: le lit supérieur d'un lit superposé est interdit aux - de 6 ans), d'une mezzanine avec deux espaces communicants fermés pas un rideau, le premier avec un lit 140 (cabinet de toilette attenant) et le second avec deux lits 90, d'une salle d'eau et wc séparé.
Cet appartement est classé meublé de tourisme 1 étoile.
Catégorie ménage: F
Studio avec alcôve et mezzanine doté d'un balcon dans la résidence Mont Blanc A en centre station à proximité immédiate des pistes, commerces et rassemblement ESF/ESI.
BONS PLANS AVEC LES SAISIES RÉSERVATIONAJOUTEZ AU PANIER VOTRE HÉBERGEMENT ET PROFITEZ DE REMISES DE -10 à 30% ! |
|
| ❄️HIVER : | Forfaits de ski, location de matériel, cours de ski, centre aquatique/spa, sorties en raquettes |
| ☀️ÉTÉ : | Pass loisirs, forfaits VTT, forfaits piéton, randonnées guidées |
En bref
- TYPE DE LOGEMENT :
- une pièce
- Localisation :
- Les Saisies centre station
- ANIMAUX :
- animaux interdits
- Capacité maximale :
- 6 personnes
- ÉTAGE PAR RAPPORT AU SOL :
- 2ème étage
- EXPOSITION :
- ouest
Équipements
- Alcôve :
- 2 lits superposés
- MEZZANINE :
- 2 lit(s) simple(s) 90 cm
- 1 lit(s) double(s) 140 cm
- STATIONNEMENT :
- parking couvert en supplément
- SALLE(S) DE BAINS :
- 1 salle(s) de bains avec douche
- SANITAIRES :
- 2 WC séparé(s)
- ÉQUIPEMENTS :
- casier à skis
- aspirateur
- ÉQUIPEMENTS CUISINE :
- lave-vaisselle
- réfrigérateur
- EXTÉRIEUR :
- balcon






















