JARDIN ALPIN -FRITILLAIRE - Appt 2 pièces - 4 personnes
Présentation
Résidence proche centre station et des commerces.
La résidence est exposée sud/est, face au Massif du Beaufortain.
Appartement 2 pièces situé au 2ème étage de la résidence sans ascenseur (2 étages à monter), orienté sud avec balcon.
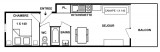
L'appartement comprend une kitchenette équipée, un séjour avec un canapé lit 140, une chambre avec un lit 140, une salle de bains et un WC séparé.
Location classée meublée de tourisme 1*
Catégorie ménage: C
La résidence est exposée sud/est, face au Massif du Beaufortain.
Appartement 2 pièces situé au 2ème étage de la résidence sans ascenseur (2 étages à monter), orienté sud avec balcon.
L'appartement comprend une kitchenette équipée, un séjour avec un canapé lit 140, une chambre avec un lit 140, une salle de bains et un WC séparé.
Location classée meublée de tourisme 1*
Catégorie ménage: C
Appartement 2 pièces avec balcon exposé sud situé dans la résidence Jardin Alpin F en centre station et proche de toutes les commodités : pistes, rassemblement ESF/ESI et commerces.
BONS PLANS AVEC LES SAISIES RÉSERVATIONAJOUTEZ AU PANIER VOTRE HÉBERGEMENT ET PROFITEZ DE REMISES DE -10 à 30% ! |
|
| ❄️HIVER : | Forfaits de ski, location de matériel, cours de ski, centre aquatique/spa, sorties en raquettes |
| ☀️ÉTÉ : | Pass loisirs, forfaits VTT, forfaits piéton, randonnées guidées |
En bref
- TYPE DE LOGEMENT :
- deux pièces
- Localisation :
- Les Saisies centre station
- ANIMAUX :
- animaux interdits
- Capacité maximale :
- 4 personnes
- ÉTAGE PAR RAPPORT AU SOL :
- 2ème étage
- EXPOSITION :
- sud
Équipements
- CHAMBRE 1 :
- 1 lit(s) double(s) 140 cm
- LITERIE :
- 2 couverture(s) simple(s)
- 2 couette(s) double(s)
- 5 oreiller(s)
- STATIONNEMENT :
- parking couvert en supplément
- SALLE(S) DE BAINS :
- 1 salle(s) de bains avec baignoire
- SANITAIRES :
- 1 WC séparé(s)
- ÉQUIPEMENTS :
- casier à skis
- aspirateur
- ÉQUIPEMENTS CUISINE :
- four



















