FORET DES RENNES II BAT C - Appt 2 pièces - 4 personnes
Présentation
Belle résidence située hors station, secteur Forêt des Rennes II, proche des départs ESF et magasin de sport.
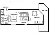
Appartement 2 pièces cabine, situé au première étage de la résidence sans ascenseur orienté sud/ouest avec balcon.
L'appartement se compose d'un séjour, d'une kitchenette équipée, d'une chambre avec un lit 140, d'une cabine avec lits superposés 2x80 (NB: le lit supérieur d'un lit superposé est interdit aux - de 6 ans) et d'une salle d'eau avec WC non séparé.
Cet appartement est classé meublé de tourisme 2 étoiles.
Appartement 2 pièces cabine, situé au première étage de la résidence sans ascenseur orienté sud/ouest avec balcon.
L'appartement se compose d'un séjour, d'une kitchenette équipée, d'une chambre avec un lit 140, d'une cabine avec lits superposés 2x80 (NB: le lit supérieur d'un lit superposé est interdit aux - de 6 ans) et d'une salle d'eau avec WC non séparé.
Cet appartement est classé meublé de tourisme 2 étoiles.
Appartement 2 pièces avec coin cabine doté d'un balcon exposé sud/ouest situé dans la résidence Forêt des Rennes II C dans le quartier de la Forêt aux Saisies proche d'un rassemblement ESF et du départ des pistes.
?BONS PLANS AVEC LES SAISIES RÉSERVATION?AJOUTEZ AU PANIER VOTRE HÉBERGEMENT ET PROFITEZ DE REMISES DE -10 à 30% ! |
|
| ❄️HIVER : | Forfaits de ski, location de matériel, cours de ski, centre aquatique/spa, sorties en raquettes |
| ☀️ÉTÉ : | Pass loisirs, forfaits VTT, forfaits piéton, randonnées guidées |
En bref
- TYPE DE LOGEMENT :
- deux pièces
- Localisation :
- Les Saisies quartier de la forêt
- ANIMAUX :
- animaux interdits
- Capacité maximale :
- 4 personnes
- ÉTAGE PAR RAPPORT AU SOL :
- 1er étage
Équipements
- CABINE :
- 2 lits superposés
- CHAMBRE 1 :
- 1 lit(s) double(s) 140 cm
- LITERIE :
- 2 couette(s) simple(s)
- 1 couette(s) double(s)
- 4 oreiller(s)
- STATIONNEMENT :
- parking couvert en supplément
- SALLE(S) DE BAINS :
- 1 salle(s) de bains avec douche
- SANITAIRES :
- 1 WC dans salle de bains
- ÉQUIPEMENTS :
- casier à skis
- aspirateur
- EXTÉRIEUR :
- balcon




















