CHRISTIANIA BAT A - Appt 2 pièces - 6 personnes
- Non classé
Présentation
Petite résidence calme, située à mi chemin entre les pistes de ski et rassemblements ESF, et le centre station. Accès par un chemin damé.
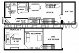
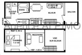
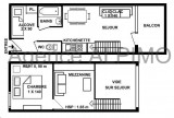
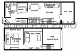
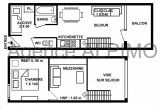
Appartement 2 pièces alcôve mezzanine situé au 2ème étage de la résidence sans ascenseur (2 étages à monter), orienté sud/est avec balcon.
L'appartement se compose d'un séjour avec un canapé clic clac 140, d'une kitchenette équipée, d'une salle de bain et d'un WC séparé, d'une alcôve avec lits superposés 2x80 (NB: le lit supérieur d'un lit superposé est interdit aux - de 6 ans), à l'étage d'une chambre avec un lit 140 et d'une mezzanine avec vide sur séjour.
Catégorie ménage: E
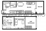
Appartement 2 pièces alcôve mezzanine situé au 2ème étage de la résidence sans ascenseur (2 étages à monter), orienté sud/est avec balcon.
L'appartement se compose d'un séjour avec un canapé clic clac 140, d'une kitchenette équipée, d'une salle de bain et d'un WC séparé, d'une alcôve avec lits superposés 2x80 (NB: le lit supérieur d'un lit superposé est interdit aux - de 6 ans), à l'étage d'une chambre avec un lit 140 et d'une mezzanine avec vide sur séjour.
Catégorie ménage: E
Appartement avec une chambre, une alcôve et une mezzanine situé dans la résidence Christiana A en centre station proche des pistes de ski et rassemblements ESF.
?BONS PLANS AVEC LES SAISIES RÉSERVATION?AJOUTEZ AU PANIER VOTRE HÉBERGEMENT ET PROFITEZ DE REMISES DE -10 à 30% ! |
|
| ❄️HIVER : | Forfaits de ski, location de matériel, cours de ski, centre aquatique/spa, sorties en raquettes |
| ☀️ÉTÉ : | Pass loisirs, forfaits VTT, forfaits piéton, randonnées guidées |
En bref
- TYPE DE LOGEMENT :
- deux pièces
- Localisation :
- Les Saisies centre station
- ANIMAUX :
- animaux interdits
- Capacité maximale :
- 6 personnes
- ÉTAGE PAR RAPPORT AU SOL :
- 2ème étage
Équipements
- Alcôve :
- 1 lits superposés
- CABINE :
- 2 lits superposés
- CHAMBRE 1 :
- 1 lit(s) double(s) 140 cm
- LITERIE :
- 2 couette(s) simple(s)
- couverture(s) simple(s)
- 2 couette(s) double(s)
- 7 oreiller(s)
- 3 traversin(s)
- STATIONNEMENT :
- parking couvert en supplément
- SALLE(S) DE BAINS :
- 1 salle(s) de bains avec baignoire
- SANITAIRES :
- 1 WC séparé(s)
- ÉQUIPEMENTS :
- casier à skis
- aspirateur
- ÉQUIPEMENTS CUISINE :
- four
- EXTÉRIEUR :
- balcon



















