CHALETS DU LAC BAT 2 - Appt Studio / cab / mezz - 6 personnes
Présentation
Petite résidence située en bas station, proche des télésièges des Carrets et rassemblements ESF. Magasin de sport et supérette à proximité.
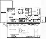
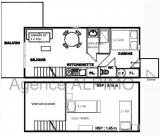
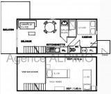
Appartement studio cabine + sous pente situé au 2ème étage de la résidence sans ascenseur (un étage et demi à monter), orienté sud/est avec balcon.
L'appartement se compose d'un séjour avec un canapé lit 140, d'une cuisine équipée ouverte, d'une cabine avec un lit 140, d'une sous pente avec deux lits 80, d'une salle d'eau et WC séparé.
Location classée LABEL QUALITE CONFORT HEBERGEMENT LES SAISIES: 3 DIAMANTS
Cet appartement est classé meublé de tourisme 2 étoiles.
Catégorie ménage: F
Appartement studio cabine + sous pente situé au 2ème étage de la résidence sans ascenseur (un étage et demi à monter), orienté sud/est avec balcon.
L'appartement se compose d'un séjour avec un canapé lit 140, d'une cuisine équipée ouverte, d'une cabine avec un lit 140, d'une sous pente avec deux lits 80, d'une salle d'eau et WC séparé.
Location classée LABEL QUALITE CONFORT HEBERGEMENT LES SAISIES: 3 DIAMANTS
Cet appartement est classé meublé de tourisme 2 étoiles.
Catégorie ménage: F
Studio avec coin cabine et sous pente situé dans la résidence Chalets du Lac en face des télésièges des Carrets et proche du ressemblement ESF. Magasin de sport et supérette à proximité.
BONS PLANS AVEC LES SAISIES RÉSERVATIONAJOUTEZ AU PANIER VOTRE HÉBERGEMENT ET PROFITEZ DE REMISES DE -10 à 30% ! |
|
| ❄️HIVER : | Forfaits de ski, location de matériel, cours de ski, centre aquatique/spa, sorties en raquettes |
| ☀️ÉTÉ : | Pass loisirs, forfaits VTT, forfaits piéton, randonnées guidées |
En bref
- TYPE DE LOGEMENT :
- une pièce
- Localisation :
- Les Saisies quartier de la traie
- ANIMAUX :
- animaux interdits
- Capacité maximale :
- 6 personnes
- ÉTAGE PAR RAPPORT AU SOL :
- 2ème étage
Équipements
- CABINE :
- 1 lit(s) double(s) 140 cm
- SÉJOUR :
- 1 banquette(s) BZ 2 pers
- LITERIE :
- 4 couette(s) simple(s)
- 6 oreiller(s)
- 1 traversin(s)
- MEZZANINE :
- 2 lit(s) simple(s) 80 cm
- STATIONNEMENT :
- parking couvert en supplément
- SALLE(S) DE BAINS :
- 1 salle(s) de bains avec douche
- SANITAIRES :
- 1 WC séparé(s)
- ÉQUIPEMENTS :
- casier à skis
- aspirateur
- EXTÉRIEUR :
- balcon






















