BREZENIU BAT B - Appt 2 pièces - 4 personnes
Présentation
Petite résidence située dans le secteur des Carrets, possibilité de rejoindre le centre station, les pistes et rassemblements ESF par un chemin damé.
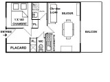
Appartement 2 pièces situé au 1 er étage de la résidence sans ascenseur (2 étages à monter), orienté sud/est avec balcon.
L'appartement se compose d'un séjour avec un canapé clic clac 140, d'une kitchenette équipée, d'une chambre avec un lit 140, d'une salle d'eau et d'un WC séparé.
Cet appartement est classé meublé de tourisme 2 étoiles.
Catégorie ménage: C
Appartement 2 pièces situé au 1 er étage de la résidence sans ascenseur (2 étages à monter), orienté sud/est avec balcon.
L'appartement se compose d'un séjour avec un canapé clic clac 140, d'une kitchenette équipée, d'une chambre avec un lit 140, d'une salle d'eau et d'un WC séparé.
Cet appartement est classé meublé de tourisme 2 étoiles.
Catégorie ménage: C
Appartement deux pièces situé dans la résidence Brezeniu dans le secteur des Carrets et orienté sud avec balcon et à proximité des pistes de ski et rassemblement ESF.
?BONS PLANS AVEC LES SAISIES RÉSERVATION?AJOUTEZ AU PANIER VOTRE HÉBERGEMENT ET PROFITEZ DE REMISES DE -10 à 30% ! |
|
| ❄️HIVER : | Forfaits de ski, location de matériel, cours de ski, centre aquatique/spa, sorties en raquettes |
| ☀️ÉTÉ : | Pass loisirs, forfaits VTT, forfaits piéton, randonnées guidées |
En bref
- TYPE DE LOGEMENT :
- deux pièces
- Localisation :
- Les Saisies quartier de la traie
- ANIMAUX :
- animaux interdits
- Capacité maximale :
- 4 personnes
- VUE :
- montagne
- ÉTAGE PAR RAPPORT AU SOL :
- 1er étage
Équipements
- CHAMBRE 1 :
- 1 lit(s) double(s) 140 cm
- LITERIE :
- 2 couette(s) simple(s)
- 2 couverture(s) simple(s)
- 2 couette(s) double(s)
- 4 oreiller(s)
- STATIONNEMENT :
- parking couvert en supplément
- SALLE(S) DE BAINS :
- 1 salle(s) de bains avec douche
- SANITAIRES :
- 1 WC séparé(s)
- ÉQUIPEMENTS :
- casier à skis
- aspirateur
- EXTÉRIEUR :
- balcon




















