LEZETTE BAT II - Appt 2 pièces - 5 personnes
Présentation
Résidence située sur le haut de la station (secteur des Hauts-Lieux) sur l'avenue de cîmes.
La résidence est exposée sud face au Mont Bisanne.
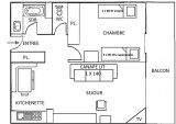
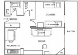
Appartement 2 pièces situé au 1er étage (1 étage et demi à descendre) de la résidence sans ascenseur, orienté sud avec balcon + garage.
L'appartement comprend une kitchenette équipée, un séjour avec un canapé lit en 160, une chambre avec des lits superposés 2x90 et un lit une personne 1x80 et une salle de bains avec wc séparé (N.B: le lit supérieur des lits superposés est interdit au - de 6 ans)
Location classée meublé de tourisme 1*
Catégorie ménage: E
La résidence est exposée sud face au Mont Bisanne.
Appartement 2 pièces situé au 1er étage (1 étage et demi à descendre) de la résidence sans ascenseur, orienté sud avec balcon + garage.
L'appartement comprend une kitchenette équipée, un séjour avec un canapé lit en 160, une chambre avec des lits superposés 2x90 et un lit une personne 1x80 et une salle de bains avec wc séparé (N.B: le lit supérieur des lits superposés est interdit au - de 6 ans)
Location classée meublé de tourisme 1*
Catégorie ménage: E
Appartement 2 pièces doté d'un balcon orienté sud dans la résidence Lezette II dans le quartier des Haut-Lieux aux Saisies, à proximité des commerces, pistes et rassemblement ESF/ESI.Garage inclus.
BONS PLANS AVEC LES SAISIES RÉSERVATIONAJOUTEZ AU PANIER VOTRE HÉBERGEMENT ET PROFITEZ DE REMISES DE -10 à 30% ! |
|
| ❄️HIVER : | Forfaits de ski, location de matériel, cours de ski, centre aquatique/spa, sorties en raquettes |
| ☀️ÉTÉ : | Pass loisirs, forfaits VTT, forfaits piéton, randonnées guidées |
En bref
- TYPE DE LOGEMENT :
- deux pièces
- Localisation :
- Les Saisies quartier des Hauts-Lieux
- ANIMAUX :
- animaux interdits
- Capacité maximale :
- 5 personnes
- VUE :
- montagne
- ÉTAGE PAR RAPPORT AU SOL :
- 1er étage
- EXPOSITION :
- sud
Équipements
- CHAMBRE 1 :
- 2 lits superposés
- 1 lit(s) simple(s) 80 cm
- STATIONNEMENT :
- garage inclus (box)
- parking couvert inclus
- SALLE(S) DE BAINS :
- 1 salle(s) de bains avec baignoire
- SANITAIRES :
- 1 WC séparé(s)
- ÉQUIPEMENTS :
- casier à skis
- aspirateur
- EXTÉRIEUR :
- balcon




















